Primăria Focșani va moderniza Creșa nr. 7 cu fonduri europene
2020-08-26 16:06:15

Primăria Focșani va moderniza Creșa nr. 7 cu fonduri europene

Primarul Cristi Valentin Misăilă a anunțat, încă din primele zile de mandat, că educația constituie una dintre prioritățile sale. Tocmai de aceea, modernizarea și dotarea adecvată a unităților școlare din Municipiul Focșani au fost în permanență pe agenda de lucru a Primarului, dovadă fiind amplul program de reabilitare a școlilor și liceelor din orașul nostru.
În acest sens, pe data de 3.11.2018, Primăria Municipiului Focșani a depus cererea de finanțare pentru obiectivul de investitii „Reabilitarea, modernizarea, extinderea clădirilor și echiparea infrastructurii educaționale a Creșei nr.7". Câteva luni mai târziu, pe data de 03.04.2019, în urma verificării conformității administrative și eligibilității, cererea de finanțare a fost aprobată trecând astfel în următoarea etapă de evaluare, respectiv etapa de evaluare tehnico-financiară.
Timp de aproape un an de zile, până pe 10.03.2020, a existat o corespondență între Primăria Municipiului Focșani și Agenția pentru Dezvoltare Regională (ADR) Sud-Est Brăila, în urma căreia a fost finalizată evaluarea tehnico-financiară a cererii de finanțare, după care, în data de 27.03.2020 s-a trecut în etapa precontractuală. Conform procedurii în vigoare, proiectul a ajuns la Ministerul Lucrărilor Publice, Dezvoltării și Administrației (MLPDA) unde, cel mai probabil, a zăcut nedeschis timp de 4 luni de zile. Nu știe nimeni motivul pentru care, de la sfârșitul lunii aprilie până pe 25 august 2020, când a fost semnat constractul de finațare, proiectul a fost ignorat, în condițiile în care fuseseră parcurse TOATE etapele de verificare și mai era nevoie doar de o simplă semnătură.
Așadar, pentru parcurgerea pașilor necesari, de la depunerea cererii de finanțare, până la semnarea formală a contractului de finanțare de către MLPDA, au fost necesare 22 de luni! Facem precizarea că scrierea proiectului și implementarea acestuia sunt exclusiv în sarcina Primăriei Municipiului Focșani.
În ceea ce privește obiectivul general al proiectului „Reabilitarea, modernizarea, extinderea clădirilor și echiparea infrastructurii educaționale a Creșei nr.7", acesta vizează asigurarea accesului sporit la educaţie timpurie pentru cel puțin 105 copii.
În cadrul proiectului vor fi realizate următoarele lucrări:
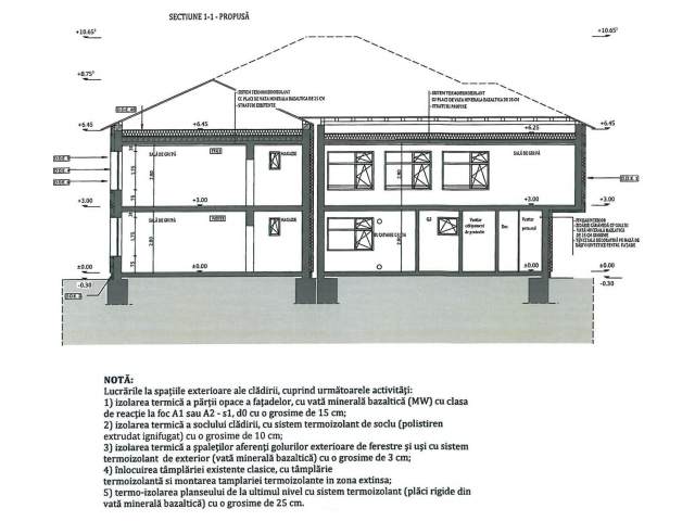
1. Reabilitarea, extinderea și modernizarea Creșei nr. 7 prin realizarea lucrărilor de reabilitare a acoperișului terasă, refacerea/înlocuirea finisajelor interioare și exterioare, recompartimentare, refacerea izolației termice, lucrări necesare pentru obținerea avizelor de funcționare etc. și de extindere în scopul creării condițiilor necesare de confort, siguranță și securitate pentru toți copiii din creșă.
2. Sporirea calității dotărilor Creșei nr. 7 - mobilier modern (pentru sălile grupelor, dormitor, sala de mese, loc de joacă etc) și echipamente IT, care vor contribui la creșterea calității actului educațional.
3. Îmbunătățirea accesului la servicii de educație timpurie a unui număr de 105 antepreșcolari din Municipiul Focșani, prin crearea unor spații de învățare și de recreere adecvată care promovează noi abordări de predare și învățare (inclusiv cu ajutorul tehnologiei moderne).
4. Reducerea consumului anual specific de căldură pentru încălzire a clădirii izolate termic are ca efect reducerea costurilor de întreţinere cu încălzirea și creşterea independenţei energetice, prin reducerea consumului de combustibil convenţional utilizat la prepararea agentului termic pentru încălzire. Totodată, reabilitarea termică a clădirii va duce automat la îmbunătățirea confortului, sănătății și siguranței antepreșcolarilor și personalului creșei- beneficiari direcți ai investiției.
Valoarea proiectului este de 3.924.750,21 lei, termenul de finalizare a lucrărilor fiind luna mai a anului 2022.


Biroul de presă

 

Galerie Foto

Cresa nr. 7
Înapoi


Servicii Online

Eliberare Certificate de Urbanism Eliberare Certificate de Urbanism

Obtine un certificat de urbanism on-line

Registratura primărie Registratura primărie

Vizualizare stadiu documente intrate în registratura Primăriei

Plăţi online Plăţi online

Posibilitatea de a plati alte servicii online

Plată SMS acces transport greu Plată SMS acces transport greu

valabilă din 10 iulie 2017

Calendar

Etica și integritateFii un exempluInfoConsRespectConect