Galerie Foto Carte de oaspeți {GALERIE_VIDEO}

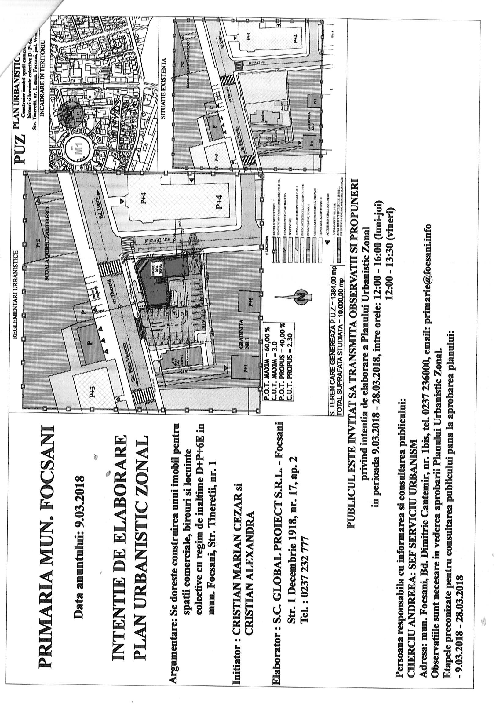
PUZ ”Construire imobil spații comerciale, birouri și locuințe colective D+P+6E”, beneficiar: Cristian Marian Cezar și Alexandra, elaborator: Global Proiect SRL, adresa: Focșani, str. Tinereții nr. 1A, nr. cad. 60274, 54023

consultare asupra propunerilor preliminare

A obținut aviz de inițiere nr. 7 din 17.01.2018.

A obținut aviz PUZ nr. 12 din 06.11.2018.

A fost aprobat cu HCL nr. 505 din 12.12.2018.

HCL 505/2018

Fișiere atașate

Înapoi


Servicii Online

Eliberare Certificate de Urbanism Eliberare Certificate de Urbanism

Obtine un certificat de urbanism on-line

Registratura primărie Registratura primărie

Vizualizare stadiu documente intrate în registratura Primăriei

Plăţi online Plăţi online

Posibilitatea de a plati alte servicii online

Plată SMS acces transport greu Plată SMS acces transport greu

valabilă din 10 iulie 2017

Calendar

Etica și integritateFii un exempluInfoConsRespectConect